(原标题:37.43亿拿地三月后,中建壹品前滩南项目第二子设计方案公示)
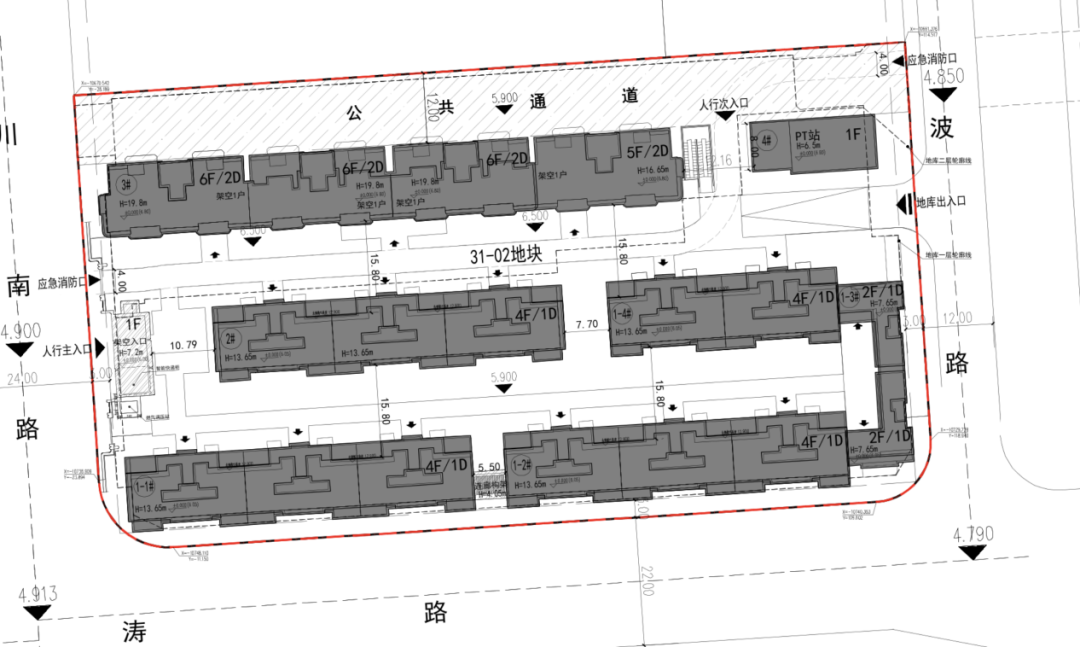
2月11日,中建壹品与湖北联投联合开发的前滩南项目再度迎来新进展。三林滨江南片地区(西片区)14单元31-02地块新建工程设计方案正式公示。
该地块为二类住宅用地,东至丽波路、南至永涛路、西至浩川南路、北至31-01地块,用地面积11173.15平方米,总建筑面积31550.00平方米,其中计容面积13407.50平方米。根据规划,地块将建设2至6层住宅,产品形态预计为洋房+四层叠拼。

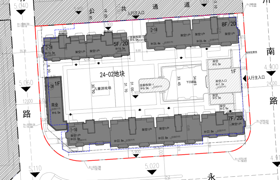
值得一提的是,这是继24-02地块之后,该项目公示的第二宗住宅子地块。此前公示的24-02地块拟建5至7层洋房产品,一楼全架空,社区内配备下沉式庭院及儿童游乐场,同时规划部分商业配套。

上述两宗地块均属于中建壹品与湖北联投于去年11月通过股权收购拿下的前滩滨江核心资产包。2025年11月17日,联合体以37.43亿元总价竞得上海建绽置业有限公司95%股权及相关债权,进而获得浦东三林滨江南片14单元五宗地块,分别为21-16、21-17、24-01、24-02及31-02地块,土地性质涵盖普通商品房、商业、办公楼等。

从区位看,项目位于三林滨江浩昌路南侧,紧邻前滩辐射区。周边在售项目前滩滨江道于今年1月25日首开,推出122套建面约89-152平方米公寓,备案均价11.65万元/平方米,开盘当日去化率约70%。

据了解,中建壹品×湖北联投前滩南项目城市展厅预计于春节后正式开放,计划在2025年第二季度入市。目前项目效果图已流出,主力户型拟推建面约100-200平方米三至四房,具体以开发商后续公示为准。




