(原标题:观宸一期调规,华晓巍的这个小心思绝了)
文/北京进深 徐迪
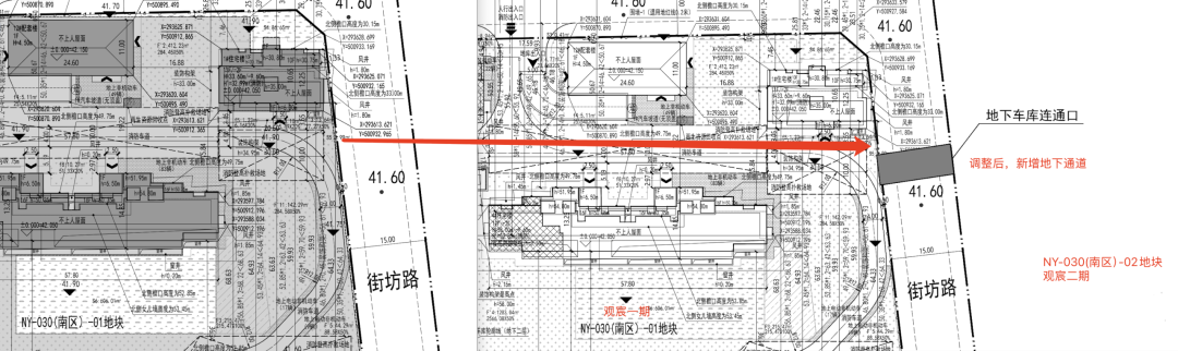
2月6日,建发金茂观宸(一期)所在的丰台槐新030-01地块更新了一张总平图。
拟在地块负一层1# 楼东南角增加一处通道,与02地块联通。
其余建设内容仍以原规划许可为准。

观宸一期在西侧,二期在东侧。
但是一期的大门朝西开,而二期大门朝东开。
两个小区背靠背,相对孤立。
有了这条地下通道,两边业主不用过马路就可以直通对面,更方便配套共享,互补互利。

观宸的开发主体北京兆兴房地产开发有限公司成立于2024年12月,注册资本45.145亿元。
建发房产和中国金茂分别持股64%和36%。
金茂华北公司副总张显刚担任项目公司董事长;建发房产北京总经理华晓巍任项目公司总经理。
项目的营销负责人为孙朝杰,带领团队创造了观宸一期的逆市热销,颇受华晓巍器重。

建发金茂观宸(一期)所在丰台槐新030-01地块成交于2024年11月29日,由建发房产旗下福州裕诚房地产24.35亿元摘得,楼面价约4万元/㎡。
引入中国金茂,联手打造了建发在京的首个“风雅宋韵”系列产品,销售指导价8.3万/㎡。
一期建设用地面积约3.04公顷,其中地上建筑面积6.08万㎡,最高建筑58米,容积率2.0。
规划11栋6-18F洋房+小高层,总户数为479户。共7个户型,面积段111-165㎡。
2025年3月23日首开,以35.98亿元的网签总额拿下当年丰台单盘销冠。
截至目前,累计网签373套,去化近八成。
成交均价约7.86万元/㎡,成交金额总计36.58亿元。

东侧的观宸二期项目所在的02地块成交于2025年6月24日,由建发+金茂联合体以20.8亿元底价摘得,折合楼面价4.02万元/㎡。
二期占地2.59公顷,地上建筑面积约5.21万㎡,建筑高度56.30米(最高),容积率2.0。
共12栋6-17F洋房和小高层产品,目前取证房源共395套房源,主力建面约113/116/134/136/155㎡,另有少量非标户型。
2025年9月份取证,预售均价8.5万/㎡,略高于一期。
目前累计网签68套,去化率17%。
成交均价约7.52万元/㎡,成交金额总计6.38亿元。
二期拟售均价高于一期,但当前的成交均价比一期低了3000+。

与一期相比,二期砍掉了110㎡的三居产品,起步就是三面宽的四叶草户型。
此外的户型格局、得房率等与一期基本一致。
赠送方面也是南向通面宽阳台+北向设备平台,边户有侧边/转角飘窗。
观宸一期卖得最好的就是136㎡户型,属于明星户型。
户型方正,赠送面积多,动静分区的格局,四个卧室都是南向或西向,采光面好。
同样的,二期目前去化最好的两栋楼:8# 和9# ,也都是136㎡户型,占网签总套数的六成以上。
其余网签房源均为120㎡以下小户型,首层和顶层的非标户型由于单价相对低,也有不少意向买家。
6# 、7# 两栋大户型暂未开售,目前只有4# 楼的155户型在售,暂无成交。
单价较高的大户型成交较少,或许也是二期成交均价低于一期的原因之一。
