(原标题:嘉棠璟樾未标退线距离,周边业主不开心了)
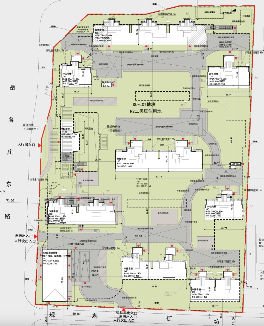
近日,嘉棠璟樾所在的丰台岳各庄DC-L01地块规划设计方案公示。
项目占地2.17万㎡,总建面约8.45万㎡,其中地上5.8万㎡,地下2.65㎡。
建筑高度55.35米(最高),容积率2.66,绿地率30%。
规划8栋住宅楼,共440套,户均建面约130㎡。
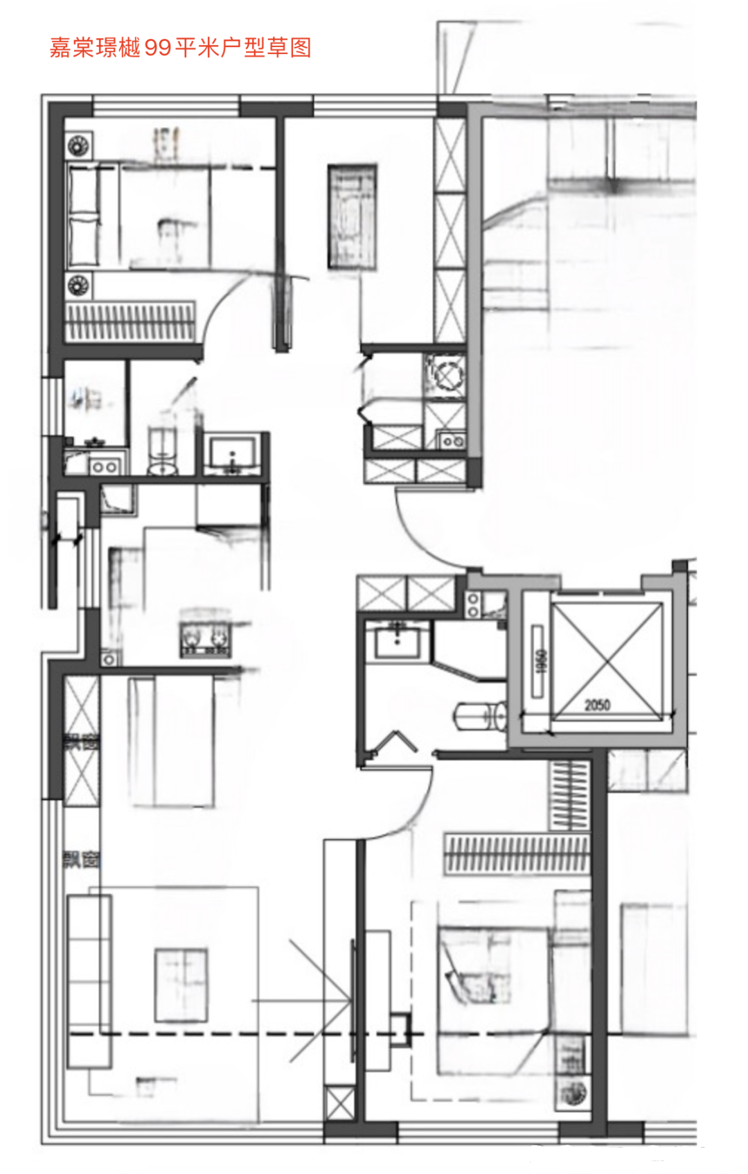
除了东南角的8号楼为10F洋房,面积是99㎡左右的三居室;
其余均为14-18F小高层,面积段116/136/155/175㎡全四居。
其中136㎡为主力户型,占比近四成。
定位以改善为主,对标观宸、丽泽叁號院。

小区地形南北长、东西短,为楼栋排布带来了难度,特别是高层产品。
如果再加上四周退线距离,原本2.66的容积率,可能要超过3.0。
这种地形给嘉棠璟樾带来三大不利因素:
1、住宅楼距离围墙过近
嘉棠璟樾的总平图上,只有东南角10# 楼洋房标注了与东侧红线(围墙)的退线距离是3.96米,其余都没有标记退线数值。
靠着东侧围墙的2# 楼和5# 楼,肉眼可见的紧贴用地红线,最窄的距离不到2米。
而《消防法》要求,住宅楼与围墙应保持6米以上距离,且6米内不得有高于围墙的建筑。
这大概就是嘉棠璟樾省略退线标记的原因。
项目周边的一众旧小区基本都是高层塔楼。
西边隔着岳各庄东路是靛厂路26号院,东边与靛厂绣园共用一道围墙,南侧街坊路对面是绣园3期和几栋办公楼,北边是千禧商业街。
这其中,东边的靛厂绣园,靠近围墙的三栋塔楼高度分别是60米、51.6和51.5米。
嘉棠璟樾北排1# 楼与东边靛厂绣园1号楼的东西距离为34.57米;
中间4# 楼与靛厂绣园2号楼距离为53.55米;
南排10# 楼与靛厂绣园3号楼距离为30.62米。
这三组是并行的楼栋,另外还有一些错排的楼栋。
过高的建筑,或将对低层房源采光形成一定遮挡。
特别是靛厂绣园这3栋楼的低层业主,隔壁平地起高楼,离得又这么近,房间的采光、视野都将要发生变化。



2、东西间距紧凑,惊现握手楼
嘉棠璟樾的楼栋做了点状排布。
除了最北排的1号楼做到3个单元,其余楼栋都不敢做太宽,否则这一排排高板会把小区挡得密不透风。
整体建筑北高南低,东南角甚至做了一栋10层高洋房。
最高一栋6号楼55.35米,南边是配电室,北边是大门和下沉庭院。
这样能够尽量减少南向日照的遮挡。
南北间距大部分在50米以上,但相邻楼栋的东西对角间距明显不足。
最近的只有2米多,站在7号楼南阳台和8号楼北设备平台上,应该能够握到手。

3、小户型狭长,通透性一般
另一方面,东西间距过于紧凑,也不利于打造大面宽产品。
起步建面99㎡三居两卫,位于东南角的8#楼。
这个户型好在是边户,如果是中间户采光会非常差。
由于房型狭长,进深面宽比接近2。
虽然南北都有窗,但是中间段功能空间太多,导致房间通透性一般。
入户门进来是开放式厨房、公卫、家政间等。
南向两面宽,客厅 主卧套房是双联阳台,目测进深在1.5米以上。
北边两个小卧室,其中一个赠送设备平台。

嘉棠璟樾位于三环、四环之间,离海淀近,但没有学区方面利好。
南侧不远处就是北京十一中堂实验学校,今年高中部将招收首届学生。
周边生活配套完善,有中国人民解放军总医院第五医学中心、千禧购物中心、银座和谐广场、万丰公园等。
缺点是距离地铁10号线六里桥站步行约2公里,轨交出行不友好。
但是自驾交通便利,西侧上四环不到1公里,东到三环2公里多点,北边是莲石路,南边是京港澳高速路,距离都在1公里左右,适合有车族置业。
还有就是大部分丰台地块的通病,有铁路。项目北侧就是北京西站车辆段,噪音是一个需要考虑到的不利因素。
另外城市界面一般,住宅以老破小居多,大多为经适房、公房。
次新二手房紫辰院的挂牌价8万 ,保利和光逸境能达到9万/㎡。
熙华台楼面价是5.28万/㎡,网签均价8.15万/㎡。
而嘉棠璟樾的楼面价更低,5万元/㎡,定价空间还是很充裕的,目前吹风价是7.5万/㎡。
这两个盘都是属于丰台西四环周边的新盘,紧邻海淀,可承接地缘外溢购买力。
综合来看,嘉棠璟樾的容积率、高度,以及地形情况,都要优于熙华台。
叠加“好房子”的公区设计和阳台等扩容空间,产品力方面也将有明显提升。
如果开盘价真能低于8万,那还是很有性价比优势的。

嘉棠璟樾所在地块成交于9月5日,由城建发展 住总 北京建工联合体以29亿元底价摘得,折合楼面价5万元/㎡。
进度算是比较快的,总平图公示前就已官宣案名。
同为“嘉棠系”,丰台嘉棠璟樾与怀柔的嘉棠澐玺在“好房子”配置上差距还是很明显的。
首先城区盘和远郊盘在赠送面积上没有可比性。
尤其是,嘉棠澐玺在土拍阶段,就明确把“提升得房率”写进了挂牌文件。
通过南向通面宽内嵌阳台 景观花池,北向设备平台,侧边飘窗等,最终落地的是一个负公摊产品。
另外,嘉棠澐玺虽然是个只有6栋楼的小型社区,但风雨连廊、七境园林、首层架空、邻里共享空间……该有的也都有。
岳各庄新盘延用“嘉棠”前缀,一来是明确建工操盘,二来多少也想沾沾嘉棠澐玺的红气。
嘉棠澐玺无疑是今年远郊盘里的小爆款。5月拿地,9月底开盘,目前基本清盘了。
这个节奏,快到很多人连它案名还没记住。
但是这个盘体量太小了确,总共7栋洋房224套房源,2万㎡出头的规模。
按照当前3.94万/㎡的成交均价,全盘售罄总金额在8.67亿元左右,对于拯救建工地产的下滑业绩,贡献度有限。
今年上半年,北京建工地产的营收和净利纷纷“开倒车”,营收39.10亿元,同比减少41%;净利润则降1.08亿元,降幅超七成。
截至6月底,北京建工地产归属于母公司所有者的净利润为-2719.57万元。
对于北京建工地产董事长潘捷而言,除了怀柔的项目,还有重仓的海淀要操心。
一个是嘉华天珺,一个是西边的半壁店地块,都是与保利发展联手重金铺排的大项目。
嘉华天珺自年初开盘以来流速一直不温不火,只能靠调规来“自救”;
半壁店项目,拿地5个月才报规,总平图公示至今1个多月,尚无下一步进展。
坊间传闻,在半壁店项目上,合作方保利主张实景开盘。
10月底,就在半壁店项目总平图公示的一周后,建工地产将持有的项目公司30%股权全部出质给了保利。
半壁店项目的拿地金是45.45亿元,30%,对应的是超过13.6亿元的份额。
抽回的这部分资金,基本都投到了丰台新项目里。
嘉棠璟樾开发主体北京建兴丰汇置业有限公司9月23日成立,注册资本29亿元。
城建发展控股48%,建工旗下北京建邦憬瑞房地产开发有限公司持股42%,住总旗下北京金第房地产开发有限责任公司持股10%。
项目公司法定代表人、董事长为李峰,总经理为李京昆,都是城建系管理层。
建工来操盘这个项目,最大的优势是对当地市场熟悉。
嘉棠璟樾往西不到2公里,就是建工熙华台项目,2023年入市,437套房源,基本清盘,网签均价8.15万/㎡,在丰台市场表现可圈可点。
嘉棠璟樾目前沿用了熙华台的售楼处(已换门头),网传户型也借鉴了熙华台的经典设计,相当于“成熟产品线的延续”。
按照当前的进度,嘉棠璟樾还是有望年内入市给建工打一个翻身仗的。










