(原标题:北京土拍压轴大戏来了 | 楼市周记)
【土地】
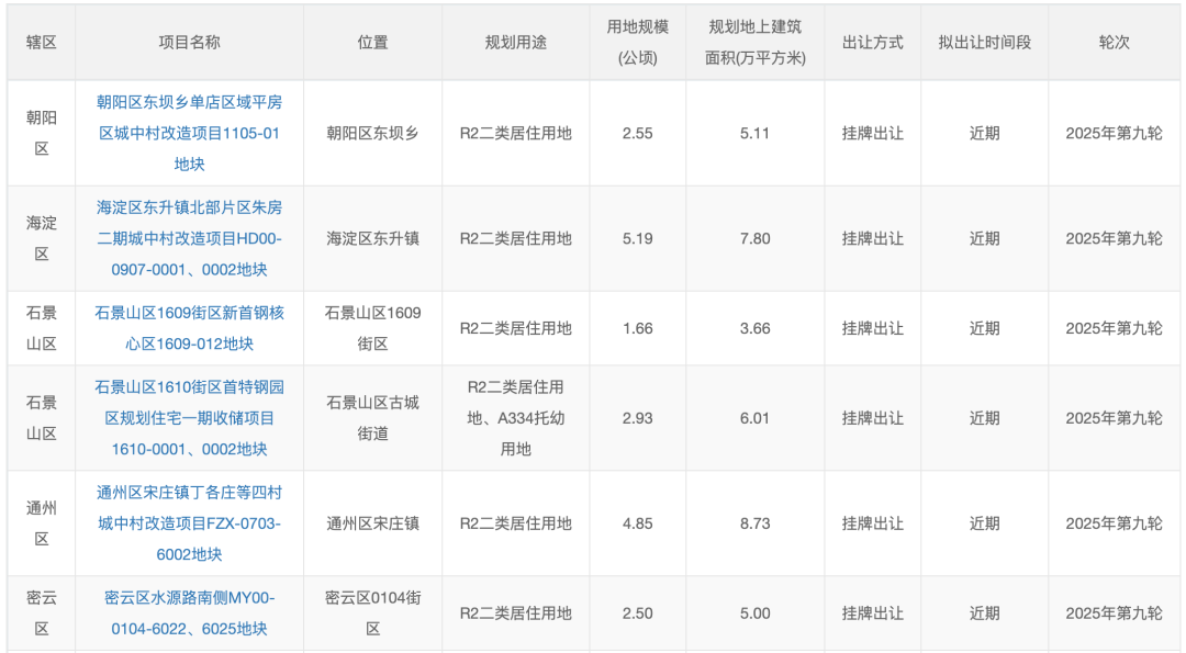
1、第九轮供地清单发布,热门板块扎堆补仓
11月21日,北京市规划和自然资源委员会网站发布了2025年第九轮拟供应商品住宅用地清单。
共涉及6宗地,土地面积约20公顷,规划地上建面建面超36万㎡。都是纯宅地,没有太多配建。
中心城区持续上新,热门板块扎堆补仓,其中海淀朱房地块颇为惹眼。
今年年初的土拍大战就从朱房双子开始,两块地都拍出了较高的溢价;臻云和海晏入市后的销售表现也是可圈可点。
期待这一次朱房新地块也能为明年的北京土拍贡献开门红。
朝阳东坝地块,属于平房区城中村改造项目,高度成熟住区,5万方的适中体量,2.0的容积率,开发难度较小,为补仓朝阳的房企提供不错的选择。

其余地块也是各有特色。石景山下半年三大新盘集中入市,包括首钢璟悦长安、中海西黄村双子,都取得了不错的成绩。本次首钢园又拿出两块成熟地块,总建面近10万方。
此外,通州宋庄城中村改造持续进行中,9万方商品房地块拟于近期供应。周边整体规划中,未来城市界面和配套都值得期待。
远郊方面,密云近两年都没有新盘入市,这次也拿出一块纯宅地,配套成熟,适合地缘改善客群。
截至目前,2025全年北京已完成34宗涉宅地块出让,未来一周还有3宗地块出让,其中就包括多家房企关注的东三环松榆里地块。
此外,12月份的土拍中,海淀上地地块预计将上演年度压轴大戏。
2、北京城建夺下天坛地王,20.28亿、溢价4%
11月19日,北京城建摘得东城区祈年大街项目,成交价20.28亿元,溢价率4%。
之前报名的山东民企百年基石并未现身拍卖现场,参与竞价的仅有中海新城和北京城建两家房企,但还是经历了近40轮较量。
最终成交的综合楼面价为8.11万元/㎡,其中住宅部分楼面价达到10.36万元/㎡。
刷新了海淀树村10.23万元/㎡的纪录,成为北京住宅楼面价最高的地块。
3、未来科学城单独出手,12.4亿托底昌平北七家地块
11月19日,未来科学城置业12.426亿元在昌平再落一子。
拿地之后,未来科学城置业发出喜报:成功摘得未来科学城能源谷核心优质醇熟地块CP01-1703-0002、0003、0001地块。
与此同时,贝好家也发出同款喜报,恭贺未来科学城拿地。两张海报主KV是一样的。剧透了双方即将合作开发此项目的意向。
未来科学城置业海报上的“立序启新章”,耐人寻味。在昌平,未来科学城置业绝对是土拍“大拿”,最近成交的涉宅地块里,除了东小口地块,其余都有他的身影。
与中建智地联手的项目有3个,包括国贤府一、二期,还有上个月才拿到的歇甲地块;与中海联手开发了寰宇未来和未来之境;去年10月,还联合越秀地产摘得小沙河地块,开发为星耀未来。
但是单独拿地,印象里只有几年前的共有产权房项目。这次单独出手商品房地块,并打出立序启新的旗帜,不排除有新产品系出现。
4、四环临铁盘上新!丰台花乡地块丝滑转正,24.72亿起拍
11月21日,花乡中部组团2405-0001地块预申请次日,正式挂牌出让。12月25日15:00开拍,起价24.72亿元。
在第八轮供地清单中,花乡中部组团共有两幅纯居住用地。本次率先进入预申请的北侧01地块规模略小,土地面积2.35万㎡,规划建面约5.89万㎡,容积率2.5,限高60米。
地形方正,东西长而南北短,面宽资源较好。预计会以改善型产品为主,可对标观宸、璞逸丰宜。
5、中建玖合VS招商蛇口,在朝阳松榆里又遇上了
继招商蛇口之后,又有一家房企对朝阳松榆里地块给出了明确意向。11月17日,中建玖合发出两则招标计划。
其中,施工投资估算11.12亿元,监理费用估算300万元。
对比此前招商蛇口发布的招标计划,施工投资少了1.5亿之多。
当然两家房企对这块地的想法不同,计划建设的总规模也有较大差异。
当初在“运河八子”地块上,招商蛇口和中建玖合也都提前发布了招标计划。但最终招商蛇口并未参与竞拍,该项目由中建玖合底价拿下,开发为运河玖院,成了今年北京的几大流量红盘之一。
这次在松榆里地块上,招商蛇口则是早在一个月前就已剧透拿地计划,想必不会轻易罢手。
松榆里地块将于下周二(11月25日)开拍,起价42.5亿元,折合楼面价约5.3万/㎡。
据悉,激活该地块的房企有8家之多,包括:招商蛇口、懋源集团、建发房产、金隅地产、中建玖合、越秀地产、北京建工地产、保利发展。其中越秀地产和北京建工以联合体形式出现
【规划、产品】
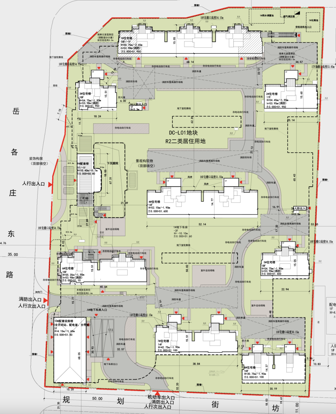
6、嘉棠璟樾总平图公示,丰台“面积红利”并未收紧
11月17日,丰台岳各庄DC-L01地块项目规划设计方案公示。
这块地成交于9月5日,由城建发展+住总+北京建工联合体以29亿元底价摘得,折合楼面价5万元/㎡。
总平图公示前就已官宣案名:嘉棠璟樾。与建工在怀柔的流量盘嘉棠澐玺搞成了亲哥俩。
延用“嘉棠”前缀,一来是明确建工操盘,二来多少也能沾沾嘉棠澐玺的红气。
项目占地2.17万㎡,总建面约8.45万㎡,其中地上5.8万㎡,地下2.65㎡,建筑高度55.35米(最高),容积率2.66,绿地率30%。
规划8栋住宅楼,共440套,户均建面约130㎡。
除了东南角的8# 为10F洋房,其余均为14-18F小高层。

①地形狭长,东西间距紧凑。整体北高南低,尽量减少南向日照的遮挡。南北间距大部分在50米以上,但相邻楼栋的东西对角间距明显不足,低层房源会有一定遮挡。最近的7号楼和8号楼只有2米多。
②架空层层高3米,低于“好房子”标准。公区景观和共享空间设计还是很丰富的。两个楼栋首层做了架空:1号楼两端单元首层架空,层高3米;6号楼首层全部架空,层高3.6米。
③户型图提前曝光,得房率超90%。面积段:99㎡/116㎡/136㎡/155㎡/176㎡,定位偏改善。大部分房源为南向通面宽阳台+北向设备平台,少数端户有侧边飘窗。大门南北两侧的3# 和6# ,西边户为阳台+转角飘窗组合。
④吹风价7.5万/㎡,环线性价比之王。位于三环、四环之间,周边生活配套完善,缺点是离地铁步行较远,城市界面一般。
7、懋源骊橒臺全景舱户型曝光,阳台尺度很大
案名发布后,懋源骊橒臺的主力户型图也出街了。建面约175㎡/190㎡/220㎡纯平层产品,全端户五居,总价约千万级起步。
擅长做别墅产品的懋源,给平层空间融入了大量的别墅基因。全系户型大面宽短进深,采光和视野资源都非常充足。
175㎡上车户型就做到南向四开间,私享梯厅,内外双玄关,配置足量带产权储藏间,解决分类收纳难题,不占室内生活面积。
动静分区,餐厨空间开放式布局,小过道的设计,在节省面积的同时,又保证了居住私密度。
三套房朝南,分离式格局,三代人同住互不打扰。北向客房1+1灵动空间,可根据实际需求选择打通或拆分。
主卧南北通透,270度飘窗,转角无墙无柱设计,视野炸裂;步入式衣帽间,双台盆带浴缸主卫。
户型最大的亮点是南向三联式露台,外加主卧一整个侧边环绕式露台,真正达到空中庭院的尺度。
当前北京纯平层新盘,有这种规模侧边露台的,还是独一份。

8、国誉未来悦被处罚后补发调规方案
11月17日,北京城市副中心0302街区FZX-0302-6004、6002地块F1住宅混合公建、A334托幼用地项目设计方案公示。
这是国誉未来悦及配套幼儿园项目,由阳光城和北京城建联手打造,规划10栋8-15层住宅楼,共641户。
2021年11月13日开盘,主力户型85/90㎡三居、110/118㎡四居,销售指导价7万元/㎡。
目前该项目已售罄,并于今年4月底交房,成交均价约5.4万万元/㎡。
根据总图说明,依据《北京市通州区九棵树街道办事处行政处罚决定书》,本项目已完成处罚。现对国誉未来悦小区2号楼南侧门廊、门房、车库出入口等进行规划手续申报。
9、反馈意见公示次日,中建运河玖院二期取得规证
11月20日,中建运河玖院二期取得5张建设工程规划许可证。包括0807、0808、0810、0811四幅地块上的全部住宅楼,以及两处家园中心。
二期项目总用地面积约5.17万㎡,容积率2.0。总建筑面积17.33万㎡:地上计容建面约11.72万㎡,不计容建面0.36万㎡;地下建面5.25万㎡。
规划16栋10-28F洋房+高层。其中有一栋通州目前最高的28层住宅楼,总高近90米。
方案于10月9日-16日进行了网上公示,期间收到公众反馈意见3条,涉及地上不计容面积、家园中心设计以及消防场地等方面。
上周六,项目开始认筹排卡,预计将于本月底取证预售。
二期增加了90㎡刚需小户型,同时减少了顶配260㎡户型的配比,取而代之的是150㎡和200㎡面积段。
这样一来总价门槛拉下来了,户型分配比较均匀,但预计开盘价格要比一期稍微要高一点。
【网签、开盘】
10、朝棠揽阅二期收官房源取证,一期还有一栋大户型没入市
11月21日,招商朝棠揽阅二期(东区)6# 楼取证。11层洋房,共3个单元66套房源,建面89㎡边户/86㎡中间户,拟售均价6.48万元/㎡。
至此,朝棠揽阅仅剩1栋楼尚未入市,为西区2# 楼,也是小区最大建面的124㎡户型。
截至目前,前四个批次832套房源累计网签462套,去化率约56%。成交金额总计24.19亿元,覆盖近九成地价款。
这其中,西区网签347套,成交均价5.79万元/㎡;东区网签115套,成交均价5.9万元/㎡。卖出了1000+的差价,调规效果还是能够看出来的。
从成交面积段来看,100㎡以下户型去化率接近七成;
大户型去化较慢,次主力101㎡户型去化率47%;
顶配124㎡户型,目前网签35套,去化仅三成左右。
11、中建臻源府全盘去化超八成,50天收回175%地价款
一个月之内连续推盘,快速网签,延庆新盘中建臻源府的成交表现相当抢眼。
项目于9月27日正式开盘,官宣成交218套。截至11月17日,已完成268套网签,全盘去化约84%。
成交均价3.23万元/㎡,约为预售价的九折。
网签金额总计9.82亿元,地价覆盖率175%。
项目位于延庆区新城0205街区,地上建面3.61万㎡,容积率1.62。规划9栋4-9F洋房,共318户,户型建面105-148㎡,南北均有大尺度赠送,综合使用率97%-98%。










